-
1/9
Parkplein aan de Eem is a proposal for the transformation of a former industrial brownsite into a public space for the new neighbourhood Kop van Isselt in Amersfoort.
-
2/9
The city square is reimagined not in stone but in soil, trees, light and shade. A hybrid of park and square, the Parkplein challenges the prevailing notion of urbanism—where often hardscapes dominate and public life is tethered to consumption.
-
3/9
Amersfoort is converting its industrial park into a bustling neighbourhood, activating the western Eem river shore as a new way into the city. Next to housing, the Parkplein will feature a health centre, a creative incubator, offices and gastronomy.
-
4/9
We start by defining a square (1) and opening it up where the context needs connections (2). An industrial shed is converted into a public covered space to act as frequency bringer (3). The Parkplein prioritises the continuity of vegetation while providing the walkability of a square (4).
-
5/9
The project combines extensive re-use of demolition materials with biobased methods applicable on an industrial scale, offering a sustainable and viable alternative to Dutch housing conventions.
-
6/9
The planting concept circles around the idea of food. There are three main landscape types: a orchard, an edible garden and an edible swamp. It features picking paths, boards with recipes and a sense of uniqueness that we hope make the Parkplein a destination.
-
7/9
A natural pool, fed from the Eem river and filtered by plants, offers refreshment during the warmest days, fixing the Pleinpark as a destination in wider Amersfoort.
-
8/9
The design is charaterised by low-rise, biobased construction using timber and compressed earth blocks, optimized through a 4-metre structural grid for modularity and cost-efficiency.
-
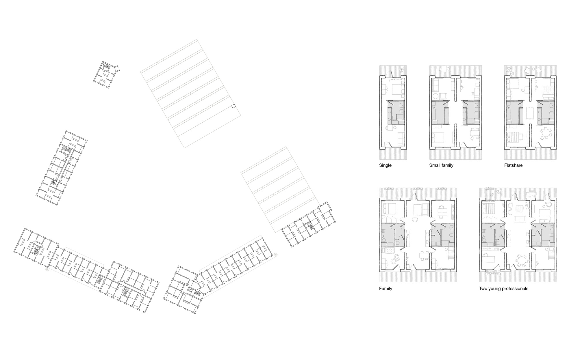
9/9
A modulating 4m grid provides flexible unit configurations without fixed room sizes. This single structure accommodates diverse co-habitation models, from traditional families to co-parenting, shared living, or students, allowing for better engagement with varied target groups.